
altersgerechte Eigentumswohnung im Neubau mit Balkon (WE 15)
07743 Jena
Preise
Kaufpreis: 316.296,00 €
Details
- Stand vom:
- 14.11.2025
- Nutzungsart:
- Wohnen
- Vermarktungsart:
- Kauf
- Objektart:
- Wohnung
- Ort:
- 07743 Jena
- Verfügbar ab:
- nach Absprache
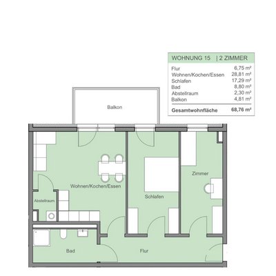
- Wohnfläche:
- 68,78 m²
- Etage:
- 2
- Anzahl Zimmer:
- 2
- Anzahl Schlafzimmer:
- 1
- Anzahl Badezimmer:
- 1
- Anzahl Stellplätze:
- 1
- Zustand:
- Erstbezug
- Ausstattungskategorie:
- Gehoben
- Ausstattung:
- BarrierefreiFernwärmePersonenaufzugFernwärme
Empfehlen
- Objektbeschreibung:
- savoir-vivre: Eigentumswohnungen in Zentrumsnähe
Savoir-vivre – die Kunst, das Leben zu genießen. Der Begriff steht für Lebensart, Stil und Gelassenheit, für Freude an Kultur, Geselligkeit und Genuss im Alltag. Dieses Lebensgefühl prägt auch Jena: die Lichtstadt, die Wissenschaft und Tradition vereint und zu den dynamischsten Städten Mitteleuropas zählt.
An der Zeitzer Straße entsteht ein modernes Mehrfamilienhaus, das urbanes Wohnen mit kurzen Wegen, dem Saaleufer und dem Landschaftsschutzgebiet Jena-Löbstedt verbindet – eine perfekte Symbiose aus Stadtleben und Erholung. Klare Architektur, durchdachte Grundrisse und hochwertige Ausstattung verleihen dem Projekt besonderen Charakter.
Im Stadtteil Jena-Nord, eingebettet zwischen dem Zentrum und Jena-Löbstedt, genießen Sie die Geborgenheit eines gewachsenen Wohnumfelds inmitten einer reizvollen Naturkulisse – kombiniert mit den Vorzügen einer lebendigen, bestens angebundenen Lage. Ob großzügige Grundrisse oder kompaktere Wohnkonzepte: Hier findet jeder sein Zuhause.
Vielfalt an Wohneinheiten
Das Projekt „savoir-vivre“ umfasst rund 2.150 m² Wohnfläche, verteilt auf 4 Etagen mit 28 Eigentumswohnungen zwischen ca. 50 und 119 m². Alle Wohnungen (außer WE 06) verfügen über Balkon oder Terrasse, im Staffelgeschoss laden großzügige Dachterrassen zum Verweilen ein. Die Wohnungen 02, 04 und 05 erhalten zusätzlich private Gartenflächen zur Sondernutzung. Die Architektur überzeugt mit klaren Linien, hochwertigen Materialien und effizienten Raumlösungen für Singles, Paare und Familien. Baubeginn ist für 2026 vorgesehen, die Fertigstellung erfolgt voraussichtlich innerhalb von 24 Monaten. Bauträger ist TW-Wohnbau, eine in Jena ansässige Unternehmensgruppe mit über 930 verkauften Wohneinheiten und über 27 Jahren Erfahrung in der Region. Überzeugen Sie sich selbst: https://www.tw-wohnbau.de/
Attraktiv für Eigennutzer und Kapitalanleger
Jena wächst kontinuierlich – und mit der Stadt die Nachfrage nach hochwertigem Wohnraum. Eine Investition in der Zeitzer Straße bietet daher nicht nur ein Zuhause mit Zukunft, sondern auch eine wertstabile Kapitalanlage mit attraktiven Mietprognosen von ca. 14–17 €/m².
Um die Verwaltung Ihrer Kapitalanlage so unkompliziert wie möglich zu gestalten, bestellen wir für Sie eine renommierte Hausverwaltung nach Anlegung der Wohnungs-und Teileigentumsgrundbücher.
Ein Energieausweis ist beantragt und wird vor Fertigstellung vorgezeigt.
Für weitere Informationen, Innenbilder, Unterlagen oder zur Vereinbarung eines Besichtigungstermins stehen wir Ihnen jederzeit zur Verfügung. Bitte nutzen Sie dafür das Formular "Anbieter kontaktieren".
We’re pleased to offer the full property description and all key details on our English-language page as well. Visit https://www.wienroth-immobilien.de/en/ for the complete information in English - Lage:
- Willkommen in der „Lichtstadt“ Jena
Als zweitgrößte Stadt Thüringens und Teil der Metropolregion Mitteldeutschland vereint Jena historische Tradition, moderne Dynamik und hohe Lebensqualität.
Wissenschaft und Innovation
Seit über 150 Jahren prägt Jena die europäische Optikindustrie. Heute gilt die Stadt mit Friedrich-Schiller-Universität, Ernst-Abbe-Hochschule und führenden Instituten (Max-Planck-, Fraunhofer-, Leibniz-Gesellschaft) in enger Zusammenarbeit mit Weltunternehmen wie ZEISS und Schott als internationaler Wissenschafts- und Hightech-Hotspot
Lebensqualität und Infrastruktur
Mit mehr als 111.000 Einwohnern und überdurchschnittlicher Kaufkraft ist Jena ein prosperierender Wohn- und Arbeitsort. Die Stadt bietet eine direkte Anbindung an die A4 und A9, schnelle Verbindungen zum Flughafen Leipzig/Halle (ca. 1 Stunde) sowie ein hervorragend ausgebautes Nahverkehrsnetz.
Lagevorteile Zeitzer Straße
ÖPNV: Straßenbahnhaltestellen ca. 600 m, Saalbahnhof 1,4 km, Westbahnhof 3,5 km
Einkauf: Bäcker/Aldi ca. 300 m, Kaufland ca. 1,2 km, , Zentrum/Goethe Galerie ca. 2,9 km
Bildung: Montessorischule ca. 400 m (mit Calisthenics-Platz), Christliches Gymnasium ca. 500 m, Carl-Zeiss-Gymnasium ca. 1,2 km, Kitas in unmittelbarer Nähe
Freizeit & Natur: Restaurants ab ca. 400 m, Wagnergasse ca. 2,5 km, Saaleufer und Landschaftsschutzgebiet Jena-Löbstedt fußläufig erreichbar, Calisthenics-Park in der Nachbarschaft
Gesundheit: Arztpraxen und Apotheken nah, Universitätsklinikum ca. 9 km
Fazit
Die Kombination aus wirtschaftlicher Stärke, wissenschaftlicher Exzellenz, naturnaher Lage am Saaleufer und optimaler Infrastruktur macht die Zeitzer Straße zu einem attraktiven Standort für Wohnen und Investieren.
Eine Adresse, die Tradition, Natur und Zukunft ideal verbindet! - Ausstattung:
- Gebäude & Außenbereiche
Das Mehrfamilienhaus präsentiert sich mit einem modernen, wärmegedämmten Flachdach und einer stilvollen, mineralisch verputzten Fassade. Großzügige Balkone und Terrassen mit hochwertigen Belägen laden zum Verweilen ein. Für Mobilität und Komfort sorgen eine Tiefgarage, Außenstellplätze sowie überdachte Fahrrad- und Lastenradstellflächen.
Heizung & Haustechnik
Die Energieversorgung erfolgt nachhaltig über Fernwärme. Jede Wohnung ist mit einer komfortablen Fußbodenheizung ausgestattet, die sich individuell regulieren lässt. In den Bädern ergänzen Handtuchheizkörper den Wohnkomfort.
Sanitär & Bäder
Die Bäder überzeugen durch zeitlose Eleganz: bodengleiche Duschen, moderne WCs mit Softclose, Badewannen sowie stilvolle Markenarmaturen schaffen eine hochwertige Wohlfühlatmosphäre.
Innenausbau
Die Wohnräume sind mit strapazierfähigen Design-Vinylböden ausgestattet, während großformatige Fliesen den Bädern eine edle Note verleihen. Wände und Decken werden glatt gespachtelt und in zeitlosem Weiß gehalten. Türen in Weißlack mit Edelstahlbeschlägen sowie einbruchhemmende Wohnungseingangstüren setzen weitere Akzente. Alle Etagen sind bequem über Aufzüge erreichbar.
Elektro & Sicherheit
Modernste Elektroinstallationen mit schnellen Netzwerk- und TV-Anschlüssen gehören zum Standard. Eine Video-Gegensprechanlage und eine zentrale Schließanlage gewährleisten zusätzliche Sicherheit und Komfort.
Sonstiges
Eine zentrale Briefkastenanlage, liebevoll gestaltete Außenanlagen sowie die Betreuung durch eine professionelle Hausverwaltung runden das Gesamtpaket ab. Individuelle Sonderwünsche können nach Absprache realisiert werden. - Sonstiges:
- Haftungsausschluss / Disclaimer
Alle Angaben in diesem Exposé und in der Onlineanzeige basieren auf Informationen, die uns von den Eigentümern oder Dritten zur Verfügung gestellt wurden. Die Wienroth Immobilien GmbH & Co. KG, Karl-Liebknecht-Straße 9, 07749 Jena, übernimmt keine Gewähr für die Richtigkeit, Vollständigkeit oder Aktualität dieser Angaben.
All information in this exposé and online listing is based on data provided to us by the owners or third parties. Wienroth Immobilien GmbH & Co. KG, Karl-Liebknecht-Straße 9, 07749 Jena, assumes no liability for the accuracy, completeness, or timeliness of this information.
Zwischenverkauf, Irrtümer und Änderungen bleiben ausdrücklich vorbehalten. Die in der Anzeige enthaltenen Grundrisse, Pläne oder Visualisierungen dienen ausschließlich der Veranschaulichung und sind nicht maßstabsgetreu. Maßangaben und Flächen sind ggf. vor Ort zu überprüfen.
Subject to prior sale, errors, and changes. Floor plans, layouts, or visualizations contained in the listing are for illustrative purposes only and are not to scale. All dimensions and areas should be verified on site.
Dieses Angebot ist freibleibend und unverbindlich. Es stellt kein rechtsverbindliches Angebot im juristischen Sinne dar. Ein Maklervertrag kommt erst durch eine schriftliche Vereinbarung mit der Wienroth Immobilien GmbH & Co. KG zustande.
This offer is non-binding and without obligation. It does not constitute a legally binding offer. A brokerage agreement is only concluded upon written confirmation by Wienroth Immobilien GmbH & Co. KG.
Provisionshinweis / Commission Notice
Sofern in der Anzeige oder im Exposé eine Provision genannt ist, wird diese bei erfolgreichem Abschluss eines notariellen Kaufvertrags fällig und ist vom Käufer an die Wienroth Immobilien GmbH & Co. KG zu zahlen. Die Höhe der Provision ergibt sich aus dem jeweiligen Angebot und versteht sich inklusive gesetzlicher Mehrwertsteuer.
If a commission is stated in the listing or exposé, it becomes due upon successful conclusion of a notarized purchase agreement and is payable by the buyer to Wienroth Immobilien GmbH & Co. KG. The amount of the commission is based on the respective offer and includes statutory VAT.
Datenschutzhinweis / Privacy Notice
Mit Ihrer Kontaktaufnahme erklären Sie sich damit einverstanden, dass Ihre Daten zum Zweck der Bearbeitung Ihrer Anfrage gespeichert und verarbeitet werden. Weitere Informationen zum Umgang mit personenbezogenen Daten finden Sie in unserer Datenschutzerklärung unter:
By contacting us, you agree that your data will be stored and processed for the purpose of handling your inquiry. Further information on the handling of personal data can be found in our privacy policy at:
👉 www.wienroth-immobilien.de/datenschutz
Energiepass
- Jahrgang:
- bei_besichtigung
- Befeuerung:
- Primärer Energieträger:
- Fernwärme
Kontaktperson
- Firma:
- Wienroth Immobilien GmbH & Co. KG
- Name:
- Team Wienroth Immobilien
- Straße:
- Karl-Liebknecht-Straße 9
- Ort:
- 07749 Jena
- Faxnummer:
- 03641273203
- www:
- https://www.wienroth-immobilien.de/











